-
Тульская
-
16 мин.
Застройщик «Отрада Девелопмент» открыл продажи квартир и пентхаусов в новом ЖК бизнес-класса.
Россияне активно осваивают голосовое управление: всего за 2024 год они приобрели 5,2 млн умных колонок на общую сумму 43,5 млрд рублей.
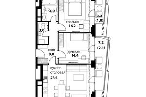
Повышенный комфорт, продуманные планировки и выгодные цены на старте продаж
Согласно исследованию аналитиков «Домклик», Кубань является лидером по медианному количеству корпусов в новых жилых комплексах. ЖК «Самолет» – яркий пример этого тренда.
Федеральная строительная компания DOGMA вошла в число партнеров второго сезона Национального студенческого конкурса «Благоустрой̆!».