Исчезновение доступных квартир, «уход» с рынка студий, а также помещений с отделкой, новый ценовой рекорд – эксперты компании «Метриум» подводят предварительные итоги по предложению, ценам и спросу на первичном рынке «старой» Москвы в 2025 году.
О квартире
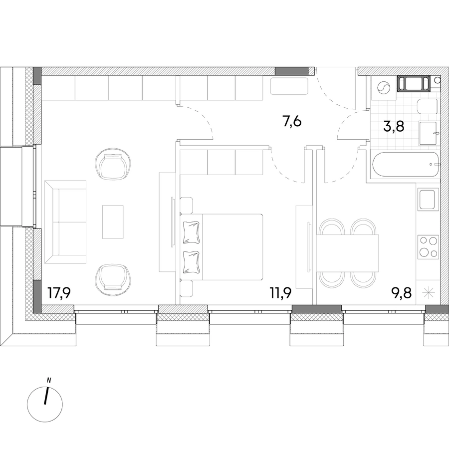
Продается 2-комнатный апартамент в комплексе апартаментов WellBe в Зеленограде! Началась выдача ключей! 2-комнатный апартамент площадью 51, расположен на 4 этаже. Вне зависимости от того, приобретаете Вы недвижимость для проживания или инвестиций, апартаменты WellBe с готовой отделкой и системой «Умный дом» - это удобство, современность и функциональность по лучшей цене. Современный комплекс апартаментов WellBe – это: - 7-ми этажное здание, рассчитанное всего на 108 апартаментов. Архитектура фасадов разработана в стиле модерна, а в облицовке дома будет использован бетонный клинкер, имитирующий кирпичную кладку. Проект Wellbe, расположенный в окружении тенистой зелени станет архитектурным событием в Зеленограде! - Каждое планировочное решение проекта отличается своей продуманностью и функциональностью, благодаря чему, в Wellbe нет лишнего пространства, Вы платите только за «полезную» площадь. - Комплекс апартаментов расположен в г. Москва, г. Зеленоград - один из самых экологически чистых округов Москвы, промышленные предприятия поблизости отсутствуют. Для жителей WellBe сразу лесопарковых зон для приятных прогулок и отдыха. Позвольте себе совмещать работу в мегаполисе с заботой о своем здоровье. - Территория проекта находится под видеонаблюдением, а во дворе предусмотрено развитое общественное пространство: для самых маленьких – безопасная детская площадка из экологичных материалов; для тех, кто следит за своим здоровьем, на территории продумана современная площадка для воркаута на базе Кенгуру Про. В WellBe каждый житель сможет найти что-то для себя. - Объект введён в эксплуатацию - с учетом отделки «под ключ» Ваш переезд или инвестиционная прибыль не заставят долго себя ждать - Строительство по 214ФЗ с использованием эскроу-счетов, что гарантирует Ваше спокойствие и безопасность сделки - Коммерческие помещения на первом этаже здания (магазины, аптека, салон красоты и другие востребованные объекты инфраструктуры) – все в шаговой доступности и для экономии Вашего времени. - Социальная инфраструктура находится в ближайшем окружении, благодаря чему у вас есть возможность потратить время на что-то более ценное - Удачная транспортная доступность - МЦД-3 Крюково в 2 км от Wellbe, от которого дорога в центр Москвы или до ст.м. Хорврино занимает 25-40 минут, удобно добираться общественным транспортом до станций метро "Водный стадион", "Тушино", "Митино" и "Пятницкое шоссе". До аэропорта Шереметьево 30 минут езды (22 км), удобный выезд на Ленинградское шоссе (9 км). - Подземный паркинг только для будущих собственников WellBe и кладовые помещения позволят оборудовать места хранения, а также создадут дополнительный комфорт и удобства для проживания. Для гостей предусмотрены наземные парковочные места. Возможна покупка с ипотечным кредитом от надежных банков. Звоните!О застройщике
Общество с ограниченной ответственностью «СПЕЦИАЛИЗИРОВАННЫЙ ЗАСТРОЙЩИК ВЭЛЛБИ»
Общество с ограниченной ответственностью «СПЕЦИАЛИЗИРОВАННЫЙ ЗАСТРОЙЩИК ВЭЛЛБИ»














